Hyr direkt utan kötid!







Ekvägen: parhus, 5 rok
Mörrum
Hyreskostnad
9000 kr/månad
Information
Antal rum
5 rum
Storlek
147 m²
Bostadstyp
Parhus
Möblerad
Fråga hyresvärd
Djur
Tillåts
Parkering
Finns
Våning
Fråga hyresvärd
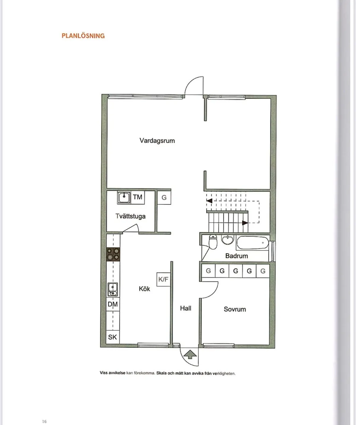
Beskrivning
Rymligt och välplanerat parhus i 1½ plan på lugn återvändsgata i centrala Mörrum. Huset har 5 rum, varav 4 sovrum, 2 badrum. En boyta på 147 kvm. Nära skola, förskola, mataffär och bra kommunikatione
Egenskaper
- Förråd
- Parkering ingår
- Parkering
- Ugn
- Spis
- Kylskåp
- Dusch
- Toalett
- Tvättmaskin
- Torktumlare
- Tvättstuga
- Uteplats
- Husdjur tillåtna
Egenskaper
- Förråd
- Parkering ingår
- Parkering
- Ugn
- Spis
- Kylskåp
- Dusch
- Toalett
- Tvättmaskin
- Torktumlare
- Tvättstuga
- Uteplats
- Husdjur tillåtna
I bostadens närområde
Hållplats i närheten
Kungsvägen
960 m
Kafé i närheten
Ljusagård
360 m
Liknande annonser
Hyreskostnad9000 kr/mån








