Hyr direkt utan kötid!




Vildandsvägen: lägenhet, 1 rok
Lund
Hyreskostnad
5200 kr/månad
Information
Antal rum
1 rum
Storlek
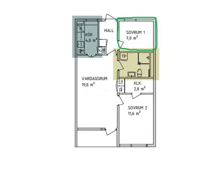
7 m²
Bostadstyp
Lägenhet
Möblerad
Möblerad
Djur
Tillåts
Parkering
Fråga hyresvärd
Våning
Fråga hyresvärd
Beskrivning
Hej! Jag hyr ut ett rum i min 3:a med inflytt nu men inflyttningsdatum kan diskuteras, lägenheten har tvättmaskin,diskmaskin,balkong. Lägenheten ligger på vildandsvägen på klosters fälad i lund, nära
Egenskaper
- Frys
- Ugn
- Spis
- Diskmaskin
- Möbler
- Kylskåp
- Torktumlare
- Tvättmaskin
- Tvättstuga
- Torkrum
- Balkong
- TV
- Internet
- Cykelrum
- Förråd
- Husdjur tillåtna
Egenskaper
- Frys
- Ugn
- Spis
- Diskmaskin
- Möbler
- Kylskåp
- Torktumlare
- Tvättmaskin
- Tvättstuga
- Torkrum
- Balkong
- TV
- Internet
- Cykelrum
- Förråd
- Husdjur tillåtna
I bostadens närområde
Hållplats i närheten
Lund Idrottsplatsen
1200 m
Matbutik i närheten
ICA Maxi Gunnesbo
1200 m
Restaurang i närheten
La Cucina
1200 m
Kafé i närheten
Espresso House
960 m
Liknande annonser
Hyreskostnad5200 kr/mån








