bostadsval logo
Hyr direkt utan kötid!
Stuga på Slöjdvägen i Vendelsö
Property image 2
Property image 3
Property image 4
Property image 5
Property image 6
Property image 7
Property image 8
Property image 9
Property image 10
Property image 11
Property image 12
Property image 13
Property image 14
Property image 15
0 / 0

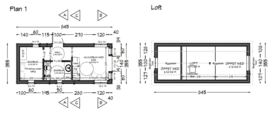
Slöjdvägen: stuga, 2.5 rok

Vendelsö
Hyreskostnad
9338 kr/månad

Information

Antal rum
2.5 rum
Storlek
30
Bostadstyp
Stuga
Möblerad
Möblerad
Djur
Fråga hyresvärd
Parkering
Fråga hyresvärd
Våning
Fråga hyresvärd

Beskrivning

Om boendet • Minivilla 30 kvm i bottenplan + loft på ca 9 kvm (begränsad takhöjd). • Byggår 2023. Egen parkering för 1 bil samt tillgång till stor härlig terrass ingår. • 30 kvm i bottenplanet är förd


Egenskaper

  • Möbler
  • Kylskåp
  • Ugn
  • Spis
  • Mikrovågsugn
  • Dusch
  • Toalett
  • Tvättmaskin
  • Balkong
  • Internet
  • Parkering ingår
  • Uteplats
Hyreskostnad9338 kr/mån