Hyr direkt utan kötid!






Onyxgatan: lägenhet, 3 rok
Västra Frölunda
Hyreskostnad
12283 kr/månad
Information
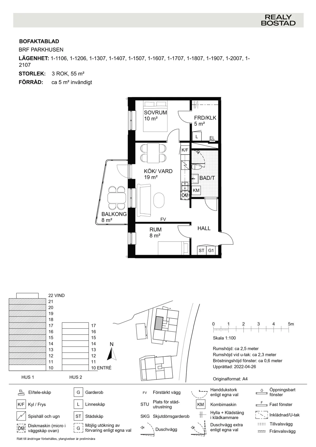
Antal rum
3 rum
Storlek
55 m²
Bostadstyp
Lägenhet
Möblerad
Fråga hyresvärd
Djur
Tillåts
Parkering
Fråga hyresvärd
Våning
Fråga hyresvärd
Beskrivning
Vi välkomnar dig till en fin 3a på ca 55 kvm på Onyxgatan 2 i Tynnered. Lägenheten ligger på våning 11. Debitering för el, varm- och kallvatten tillkommer efter förbrukning. Egna avtal för detta behöv
Egenskaper
- Diskmaskin
- Tvättmaskin
- Balkong
- Hiss
- Torktumlare
- Husdjur tillåtna
- Säkerhetsdörr
- Värme ingår
- Dusch
Egenskaper
- Diskmaskin
- Tvättmaskin
- Balkong
- Hiss
- Torktumlare
- Husdjur tillåtna
- Säkerhetsdörr
- Värme ingår
- Dusch
I bostadens närområde
Hållplats i närheten
Björkhöjdsgatan
840 m
Restaurang i närheten
Pizzeria Bella Napoli
120 m
Matbutik i närheten
Tynnereds lågpris
120 m
Skola i närheten
Drakbergsskolan
600 m
Liknande annonser
Hyreskostnad12283 kr/mån









