Hyr direkt utan kötid!



Granövägen: lägenhet, 2 rok
Södertälje
Hyreskostnad
9451 kr/månad
Information
Antal rum
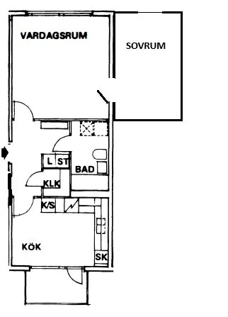
2 rum
Storlek
60 m²
Bostadstyp
Lägenhet
Möblerad
Fråga hyresvärd
Djur
Tillåts
Parkering
Finns
Våning
Fråga hyresvärd
Beskrivning
Renoverad lägenhet på nedre botten med stora fönster och mycket ljusinsläpp. Modernt kök i anslutning till balkong samt renoverat badrum med kakel och klinker. Parkering- och garageplats finns att hyr
Egenskaper
- Badkar
- Balkong
- Husdjur tillåtna
- Värme ingår
- Vatten ingår
- Parkering
- Garage
Egenskaper
- Badkar
- Balkong
- Husdjur tillåtna
- Värme ingår
- Vatten ingår
- Parkering
- Garage
I bostadens närområde
Matbutik i närheten
Hovsjö Matcenter
240 m
Restaurang i närheten
Hovsjögrillen
120 m
Liknande annonser
Hyreskostnad9451 kr/mån









