Hyr direkt utan kötid!


Skylvägen: lägenhet, 3 rok
Östersund
Hyreskostnad
7301 kr/månad
Information
Antal rum
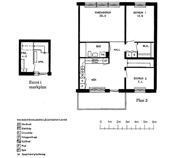
3 rum
Storlek
86 m²
Bostadstyp
Lägenhet
Möblerad
Fråga hyresvärd
Djur
Tillåts
Parkering
Finns
Våning
Fråga hyresvärd
Beskrivning
Området är uppdelat på tre gårdar längs ett genomgående gångstråk. Området består av 8 flerbostadshus som är två till tre våningar höga. Trevåningshusen har trapphus, hiss och loftgång. Lägenheterna i
Egenskaper
- Dusch
- Balkong
- Rökning tillåten
- Husdjur tillåtna
- TV ingår
- Värme ingår
- Vatten ingår
- Parkering
Egenskaper
- Dusch
- Balkong
- Rökning tillåten
- Husdjur tillåtna
- TV ingår
- Värme ingår
- Vatten ingår
- Parkering
I bostadens närområde
Hållplats i närheten
Rapsvägen
600 m
Liknande annonser
Hyreskostnad7301 kr/mån








