Hyr direkt utan kötid!





Arkens väg: lägenhet, 3 rok
Handen
Hyreskostnad
12070 kr/månad
Information
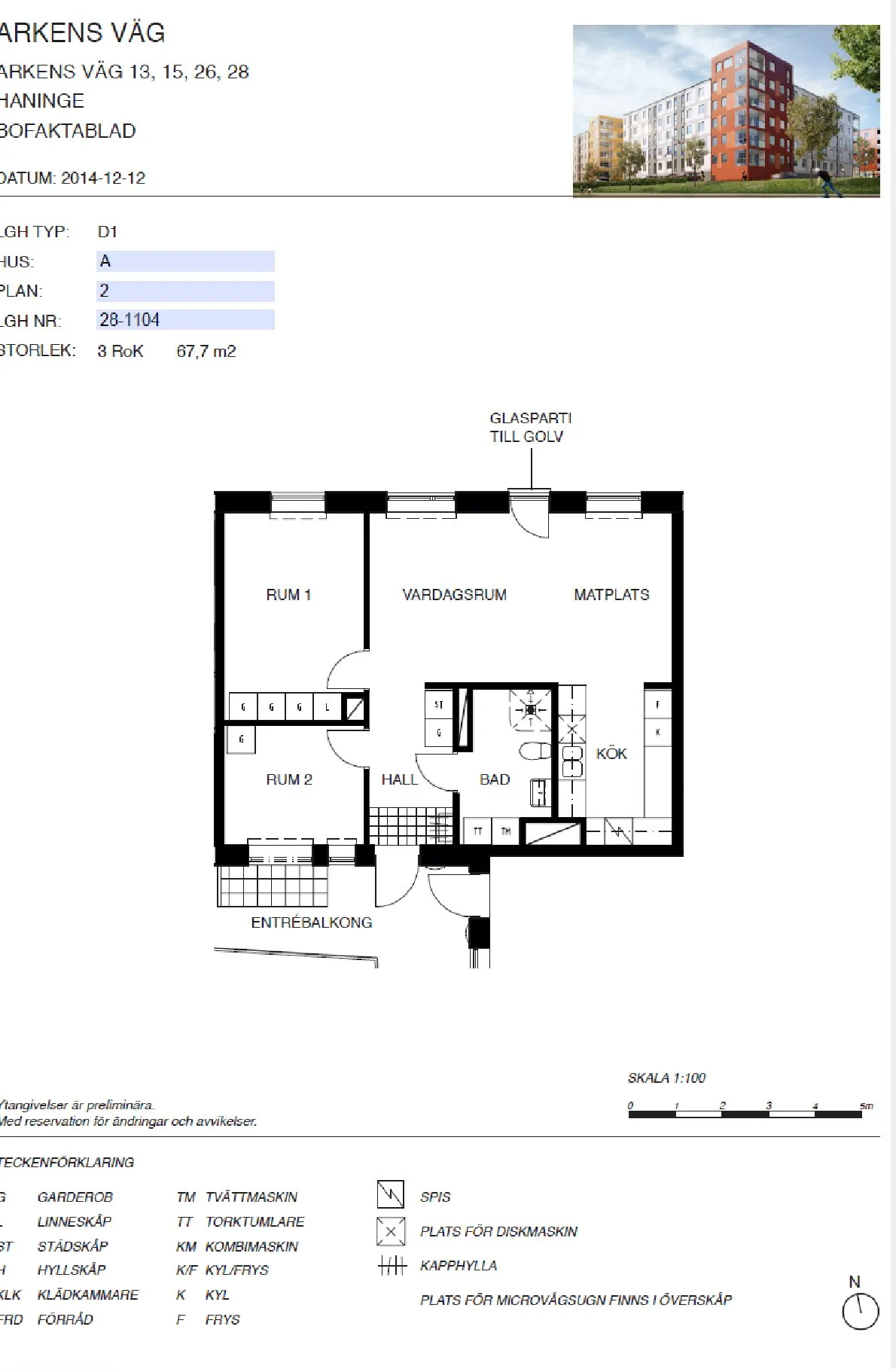
Antal rum
3 rum
Storlek
67 m²
Bostadstyp
Lägenhet
Möblerad
Fråga hyresvärd
Djur
Tillåts
Parkering
Fråga hyresvärd
Våning
Fråga hyresvärd
Beskrivning
Välkommen till Kvarter Saga i Handen som erbjuder lägenheter i ett naturskönt område med närhet till Rudans friluftsområde och naturreservat, med stora gräsytor, lekplatser, utegym och badplatser. Und
Egenskaper
- Tvättmaskin
- Dusch
- Hiss
- Torktumlare
- Pentry
- Tvättstuga
- Husdjur tillåtna
- Säkerhetsdörr
- TV ingår
- Värme ingår
Egenskaper
- Tvättmaskin
- Dusch
- Hiss
- Torktumlare
- Pentry
- Tvättstuga
- Husdjur tillåtna
- Säkerhetsdörr
- TV ingår
- Värme ingår
Liknande annonser
Hyreskostnad12070 kr/mån









