bostadsval logo
Hyr direkt utan kötid!
Lägenhet på Arkens väg i Handen
Property image 2
Property image 3
Property image 4
Property image 5
0 / 0

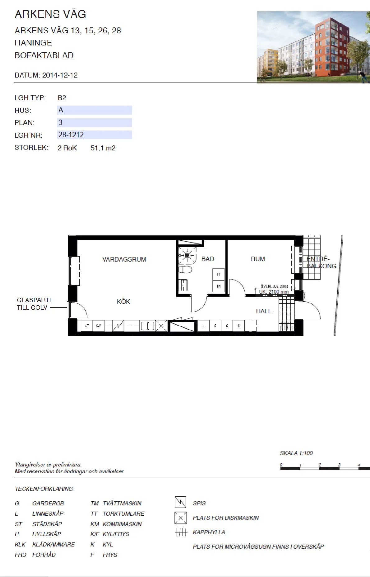
Arkens väg: lägenhet, 2 rok, våning 2

Handen
Hyreskostnad
9844 kr/månad

Information

Antal rum
2 rum
Storlek
51.1
Bostadstyp
Lägenhet
Möblerad
Fråga hyresvärd
Djur
Fråga hyresvärd
Parkering
Fråga hyresvärd
Våning
2

Beskrivning

Välkommen till Kvarter Saga i Handen som erbjuder lägenheter i ett naturskönt område med närhet till Rudans friluftsområde och naturreservat, med stora gräsytor, lekplatser, utegym och badplatser. Und


Egenskaper

  • Hiss
  • Tvättrum
  • pentry
  • Köksfläkt
  • Dusch
  • drier
  • Tvättmaskin
Hyreskostnad9844 kr/mån