Hyr direkt utan kötid!





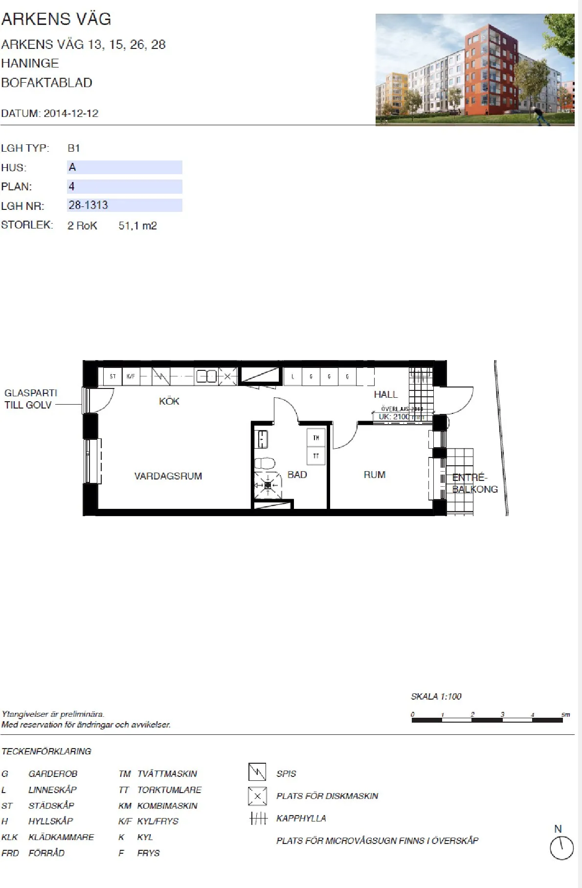
Arkens väg: lägenhet, 2 rok, våning 3
Handen
Hyreskostnad
9844 kr/månad
Information
Antal rum
2 rum
Storlek
51.1 m²
Bostadstyp
Lägenhet
Möblerad
Fråga hyresvärd
Djur
Fråga hyresvärd
Parkering
Fråga hyresvärd
Våning
3
Beskrivning
Välkommen till Kvarter Saga i Handen som erbjuder lägenheter i ett naturskönt område med närhet till Rudans friluftsområde och naturreservat, med stora gräsytor, lekplatser, utegym och badplatser. Und
Egenskaper
- Hiss
- Balkong
- Tvättrum
- pentry
- Köksfläkt
- Dusch
- drier
- Tvättmaskin
Egenskaper
- Hiss
- Balkong
- Tvättrum
- pentry
- Köksfläkt
- Dusch
- drier
- Tvättmaskin
Liknande annonser
Hyreskostnad9844 kr/mån









