Hyr direkt utan kötid!



Salamandergatan: lägenhet, 1 rok
Färjestaden
Hyreskostnad
6312 kr/månad
Information
Antal rum
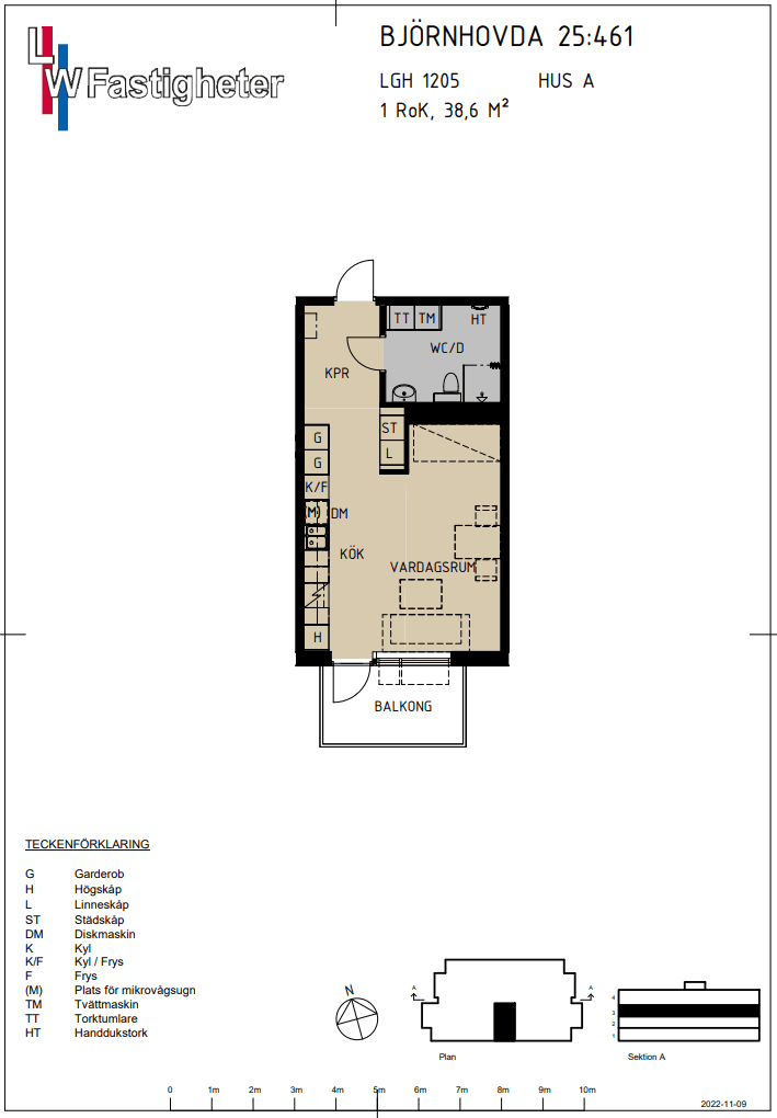
1 rum
Storlek
38 m²
Bostadstyp
Lägenhet
Möblerad
Fråga hyresvärd
Djur
Tillåts
Parkering
Finns
Våning
Fråga hyresvärd
Beskrivning
Ljus och rymlig etta på populära Salamandergatan i Färjestaden! Öppen planlösning, kök med diskmaskin. Helkaklat badrum med dusch, tvättmaskin och torktumlare. Härlig balkong!
Egenskaper
- Diskmaskin
- Tvättmaskin
- Dusch
- Balkong
- Hiss
- Torktumlare
- Husdjur tillåtna
- TV ingår
- Värme ingår
- Parkering
Egenskaper
- Diskmaskin
- Tvättmaskin
- Dusch
- Balkong
- Hiss
- Torktumlare
- Husdjur tillåtna
- TV ingår
- Värme ingår
- Parkering
Liknande annonser
Hyreskostnad6312 kr/mån









