Hyr direkt utan kötid!

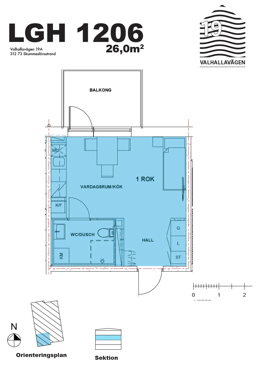
Valhallavägen: lägenhet, 1 rok, våning 2
Båstad
Hyreskostnad
5647 kr/månad
Information
Antal rum
1 rum
Storlek
33.6 m²
Bostadstyp
Lägenhet
Möblerad
Fråga hyresvärd
Djur
Fråga hyresvärd
Parkering
Fråga hyresvärd
Våning
2
Beskrivning
Charmig 1 Rum och kök med egen balkong. Ett perfekt boende för dig som vill kombinera havsnära liv med bekväm service och goda kommunikationer – välkommen hem till Allarp! Om Bostaden - Lägenheten e
Egenskaper
- Hiss
- Balkong
- Köksfläkt
- drier
- Tvättmaskin
Egenskaper
- Hiss
- Balkong
- Köksfläkt
- drier
- Tvättmaskin
I bostadens närområde
Hållplats i närheten
Allarp
480 m
Liknande annonser
Hyreskostnad5647 kr/mån









