Hyr direkt utan kötid!







Oxelvägen: lägenhet, 1 rok
Älta
Hyreskostnad
4250 kr/månad
Information
Antal rum
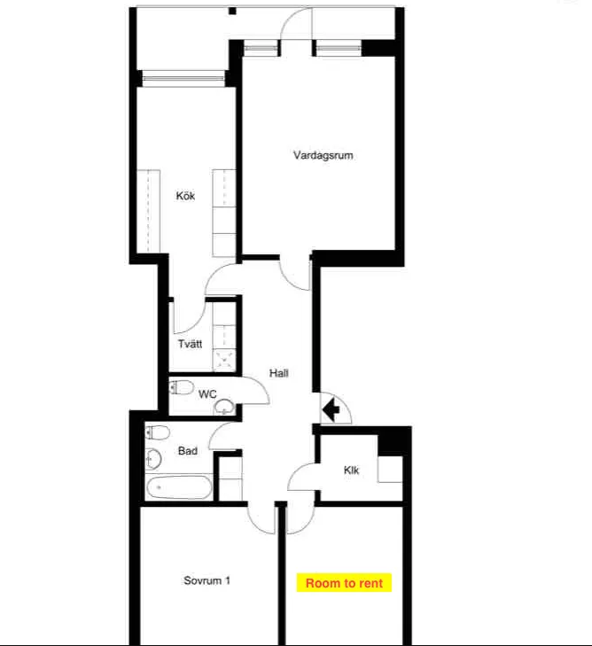
1 rum
Storlek
15 m²
Bostadstyp
Lägenhet
Möblerad
Möblerad
Djur
Fråga hyresvärd
Parkering
Fråga hyresvärd
Våning
Fråga hyresvärd
Beskrivning
***Males only*** A nice furnished room in shared apartment with everything you need is available in a quiet and nice area close to the city (12 min Gullmarsplan, or 20 minutes to Slussen with bus). Th
Egenskaper
- Möbler
- Kylskåp
- Frys
- Ugn
- Spis
- Mikrovågsugn
- Toalett
- Badkar
- Tvättstuga
- Balkong
- Internet
- Cykelrum
- Hiss
- Återvinning
Egenskaper
- Möbler
- Kylskåp
- Frys
- Ugn
- Spis
- Mikrovågsugn
- Toalett
- Badkar
- Tvättstuga
- Balkong
- Internet
- Cykelrum
- Hiss
- Återvinning
I bostadens närområde
Matbutik i närheten
Coop Älta Gård
1080 m
Liknande annonser
Hyreskostnad4250 kr/mån









