Hyr direkt utan kötid!











Rönnvägen: hus, 5 rok
Perstorp
Hyreskostnad
8500 kr/månad
Information
Antal rum
5 rum
Storlek
127 m²
Bostadstyp
Hus
Möblerad
Fråga hyresvärd
Djur
Tillåts
Parkering
Finns
Våning
Fråga hyresvärd
Beskrivning
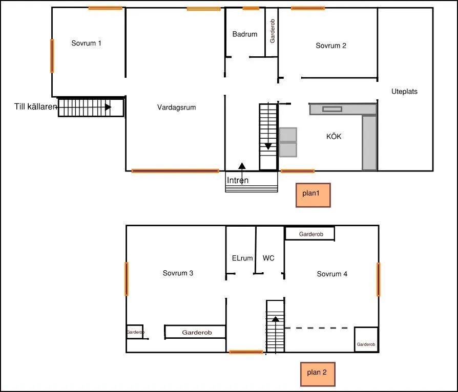
Villa uthyres i Perstorp 📍 Adress: Rönnvägen 2 Trevlig och familjevänlig villa uthyres, bestående av: • 4 sovrum och ett rymligt vardagsrum • Kök med utrustning • Badrum • Toalett -WC • Garage • Som
Egenskaper
- Frys
- Ugn
- Spis
- Diskmaskin
- Mikrovågsugn
- Dusch
- Toalett
- Förråd
- Parkering
- Uteplats
- Kylskåp
- Tvättmaskin
- Torktumlare
- Internet
- Parkering ingår
- Återvinning
- Husdjur tillåtna
Egenskaper
- Frys
- Ugn
- Spis
- Diskmaskin
- Mikrovågsugn
- Dusch
- Toalett
- Förråd
- Parkering
- Uteplats
- Kylskåp
- Tvättmaskin
- Torktumlare
- Internet
- Parkering ingår
- Återvinning
- Husdjur tillåtna
I bostadens närområde
Hållplats i närheten
Perstorp
840 m
Restaurang i närheten
Pizzeria Hörnan
960 m
Kafé i närheten
Vipp
1080 m
Liknande annonser
Hyreskostnad8500 kr/mån









