Hyr direkt utan kötid!








Ekorrvägen: hus, 7 rok
Bålsta
Hyreskostnad
16000 kr/månad
Information
Antal rum
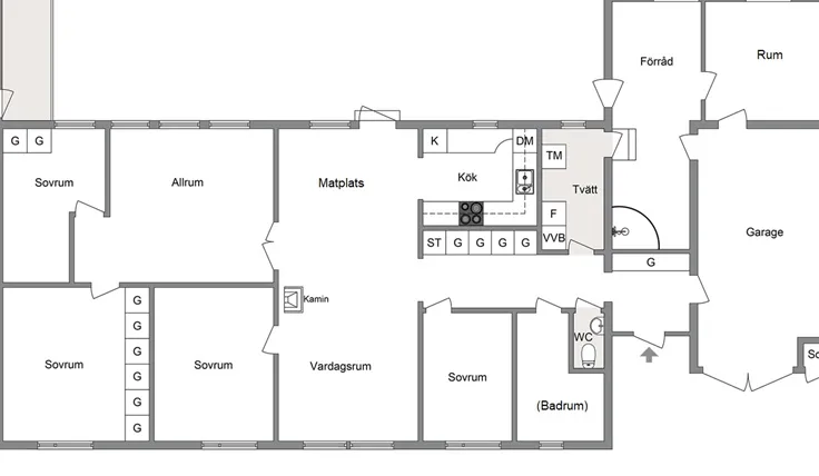
7 rum
Storlek
150 m²
Bostadstyp
Hus
Möblerad
Fråga hyresvärd
Djur
Tillåts
Parkering
Fråga hyresvärd
Våning
Fråga hyresvärd
Beskrivning
Enplanshus på insynsskyddad hörntomt i söderläge med en stor veranda under tak och ett växthus med möjlighet att både ha möbler och växter i. Inne i huset finns en värmande täljstenskamin och ett nyre
Egenskaper
- Förråd
- Parkering ingår
- Öppen spis
- Frys
- Ugn
- Spis
- Diskmaskin
- Dusch
- Toalett
- Tvättmaskin
- Tvättstuga
- Uteplats
- Kylskåp
- Husdjur tillåtna
Egenskaper
- Förråd
- Parkering ingår
- Öppen spis
- Frys
- Ugn
- Spis
- Diskmaskin
- Dusch
- Toalett
- Tvättmaskin
- Tvättstuga
- Uteplats
- Kylskåp
- Husdjur tillåtna
I bostadens närområde
Kafé i närheten
Konditori Solslätten
1200 m
Restaurang i närheten
Lucky House
1200 m
Liknande annonser
Hyreskostnad16000 kr/mån









